본 연구는 현행 법제에서 ‘보행자길’의 개념이 지나치게 포괄적으로 규정되어 있음에 따라 발생하는 관리 사각지대를 해소하고, 최근 강화되고 있는 보행 중심 정책 흐름에 부합하는 법·제도적 내실화를 도모하기 위해 기획되었다. 이에 모호하게 정의되어 온 보행자길의 유형과 범위를 명확히 재정비함으로써 체계적인 관리 기반을 마련하고, 궁극적으로 보행자의 안전과 권리를 실질적으로 보장할 수 있는 구체적인 법제 개선 방안을 도출하는 것을 목적으로 한다.
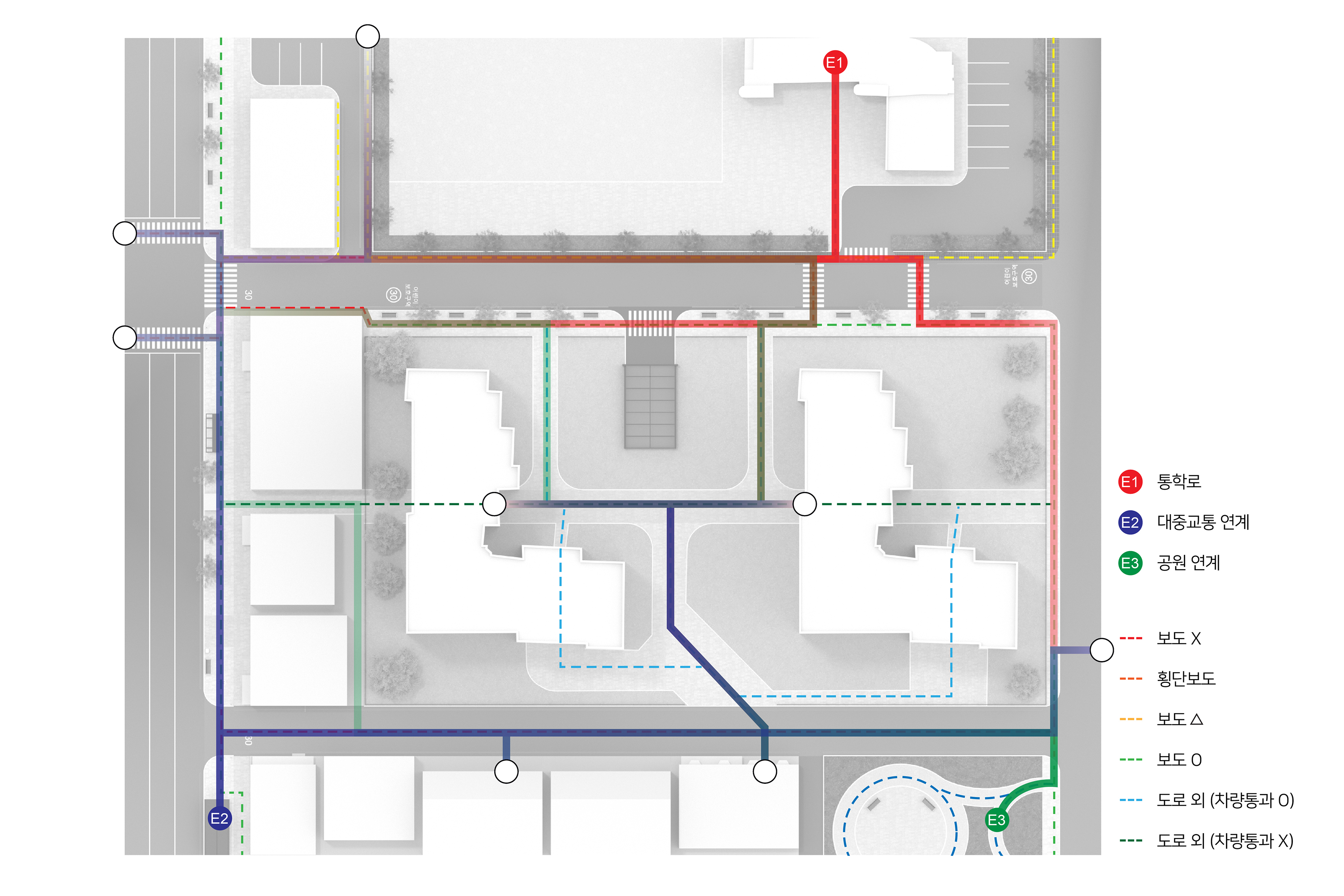
보행자길의 공간적 특성을 시각적으로 검토하기 위해, 본 연구에서는 대로와 이면도로를 아우르는 가상의 보행환경을 설정하였다. 보행자길을 독립적인 시설이 아닌 주변 공간과 유기적으로 연결된 연속적인 네트워크로 간주하고, 구역 내에 학교·공원·대중교통시설·주거 및 상업시설 등을 배치함으로써 다양한 시설과 보행로가 복합적으로 연결된 실제적인 보행환경을 구현하였다.
현행 법제상 도로로 구분되는 보행자길은 크게 세 가지 유형으로 구분되며, 각 유형별로 발생 가능한 보행권 침해 사례는 다음과 같다.
보차분리도로(A)는 도로와 보도가 물리적으로 분리되어 있으나, 차량 진·출입로 및 이면도로 진입부로 인한 보도의 단절(A1), 가로시설물 및 적치물, 보도 점용 행위와 공사로 인한 유효폭 침해(A2), 보행류 합류 지점(횡단보도·정류장 대기공간)에서의 과밀 및 혼잡(A3), 보도 위 주차·승하차 차량, 자전거·킥보드 등 다른 이용자와의 충돌(A4)이 발생할 수 있다
불완전분리도로(B)는 도로와 보도가 물리적으로 분리되어 있으나, 보행로가 편측으로 설치되어 있거나(B1) 보행로 폭이 협소해 유효폭이 미달되는 경우로(B2), 보행 안전성과 연속성이 충분히 확보되지 않은 도로 유형이다.
보차미분리도로(C)는 도로와 보도가 분리되지 않은 도로 유형으로, 가로변 시설 출입구, 테라스, 옥외 광고물 등으로 인해 가장자리 보행공간이 침범되거나(C1), 노상주차(C2)로 다른 운전자와의 사각지대가 발생해 보행 안전과 이동에 어려움이 나타날 수 있다.
단지 내 도로(D1)에서는 배달 이륜차, 택배·이사 차량, 소방 및 응급차량의 통행으로 인해 보행 안전성이 저해되는 문제가 발생하고 있다. 공원 내 보행로(D2)에서는 킥보드와 자전거의 통과로 보행자와의 상충이 빈번하게 나타나며, 대중교통역 주변(D3)에서는 지하철 출입구 인근의 혼잡으로 인해 유효 보도 폭이 침범되는 문제가 발생한다. 또한 공공보행통로(D4)에서는 통행 차단시설과 적치물의 무단 점유로 인해 보행 연결성이 지속적으로 저해되고 있다.
Copyright © 2026 by WASUD
